Bestill katalog

Kongsgård - herskapelig enebolig

Opplev elegansen til Mesterhus Kongsgård - et stort herskapelig hus med store fellesarealer, rause rom og god takhøyde.

  • BRA 315,0 m²
  • P-rom
  • 5

Med sine imponerende 315 kvadratmeter, leverer dette herskapelige huset alt du kan ønske deg av plass og komfort. Med fem soverom og flere muligheter, er det ideelt for familier som ønsker et romslig hjem.

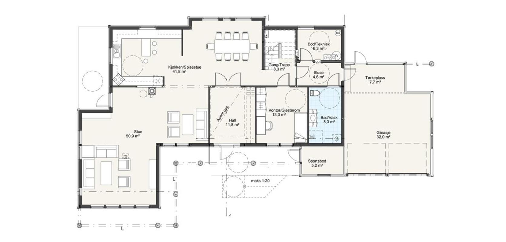
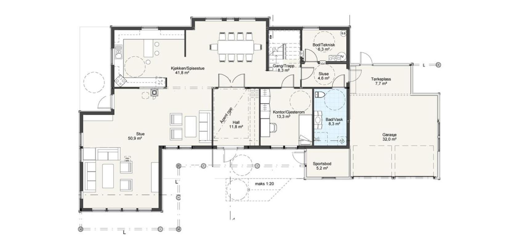
Mesterhus Kongsgård har en klassisk og tradisjonell utforming. Fasaden prydes av flere arkitektoniske buer og utbygg, og arkene i andre etasje er symmetrisk plassert, noe som skaper et herlig og sofistikert uttrykk. Den tilhørende garasjen og stuefløyen danner sammen med hovedhuset et trivelig atrium, som gir en skjermet uteplass og inngangsparti.

Inne i huset møtes du av en imponerende hall med en åpen himling som gir en storslått utsikt mot galleriet i andre etasje. Den store takhøyden skaper en følelse av romslighet og lar naturlig lys flomme inn i rommet. Stueområdet er delt inn i tre soner, som kan brukes som to eller tre separate stuer. Kjøkkenet har en åpen planløsning mot stuene, men det er også mulig å skille av kjøkkenet, spisestuen og stuen etter behov.

Andre etasje byr på spennende løsninger med en åpen forbindelse til hallen i første etasje. Her finner du fire romslige soverom, et stort oppholdsrom og et fleksibelt mellomrom som kan brukes som hjemmekontor, bibliotek eller tv-stue. Huset har også to store bad og en ekstra inngang via garasjen og vaskerommet, som gir ekstra bekvemmelighet i hverdagen.

Mesterhus Kongsgård er spesielt tilpasset for flate tomter og vil garantert bli et imponerende blikkfang. Opplev den herskapelige elegansen og romsligheten som dette huset har å tilby, og gjør drømmen om et stort og klassisk hjem til virkelighet.

Bestill katalog